Confraria do Caco

Rebordoes – Santo Tirso, Portugal

 

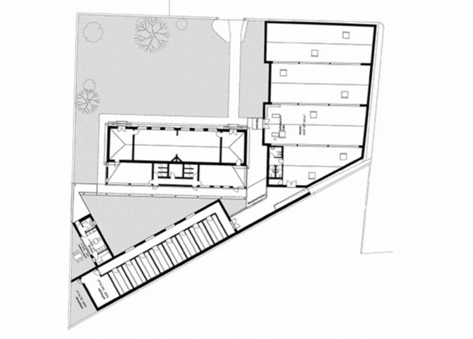
In Portugals Norden widmet sich die „Confraria do Caco“ dem traditionellen Kunsthandwerk und der Angewandten Kunst. Für die umfangreiche Sammlung wird ein Museum für Wechselausstellungen, Depoträume und eine Gästewohnung benötigt. Die Veranstaltungsräume befinden sich in einem ehemaligen Schulhaus, ein Typengebäude aus der Zeit der Diktatur.
Das Museum mit ca. 600 m² Fläche füllt die Hanglage entlang der beiden Straßen aus. Die versetzt angeordneten, langgestreckten Baukörper mit Walmdächern interpretieren Elemente der traditionellen portugiesischen Architektur aus Landwirtschaft und früher Industrialisierung.
Die Depoträume entlang einer Stützwand zum Nachbargrundstück lassen unterschiedliche Freibereiche entstehen, die Gästewohnung orientiert sich zu einem privaten Gartenhof.

< >